Obra Finzalizada

SANT HONORAT 24

VIVE
VIENDO
EL MAR

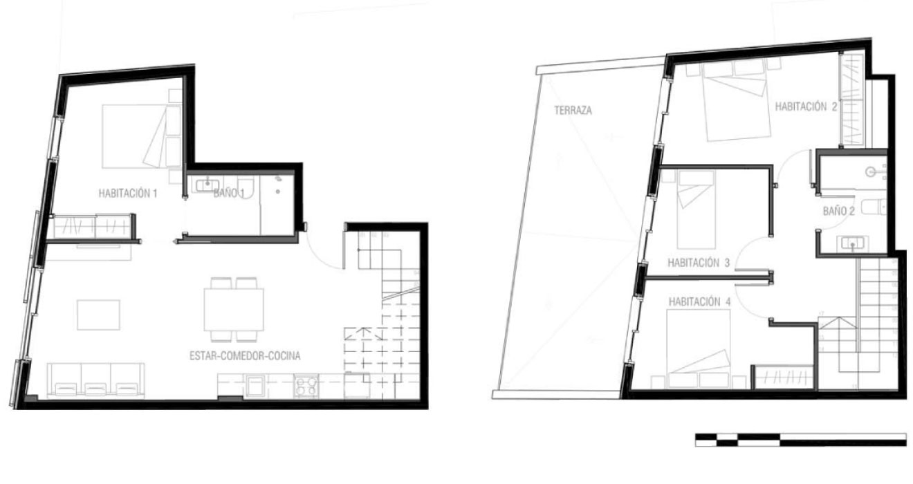
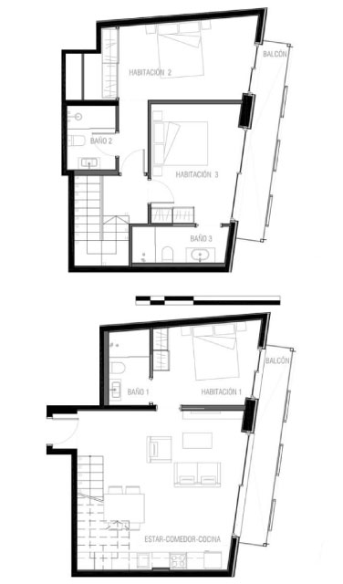
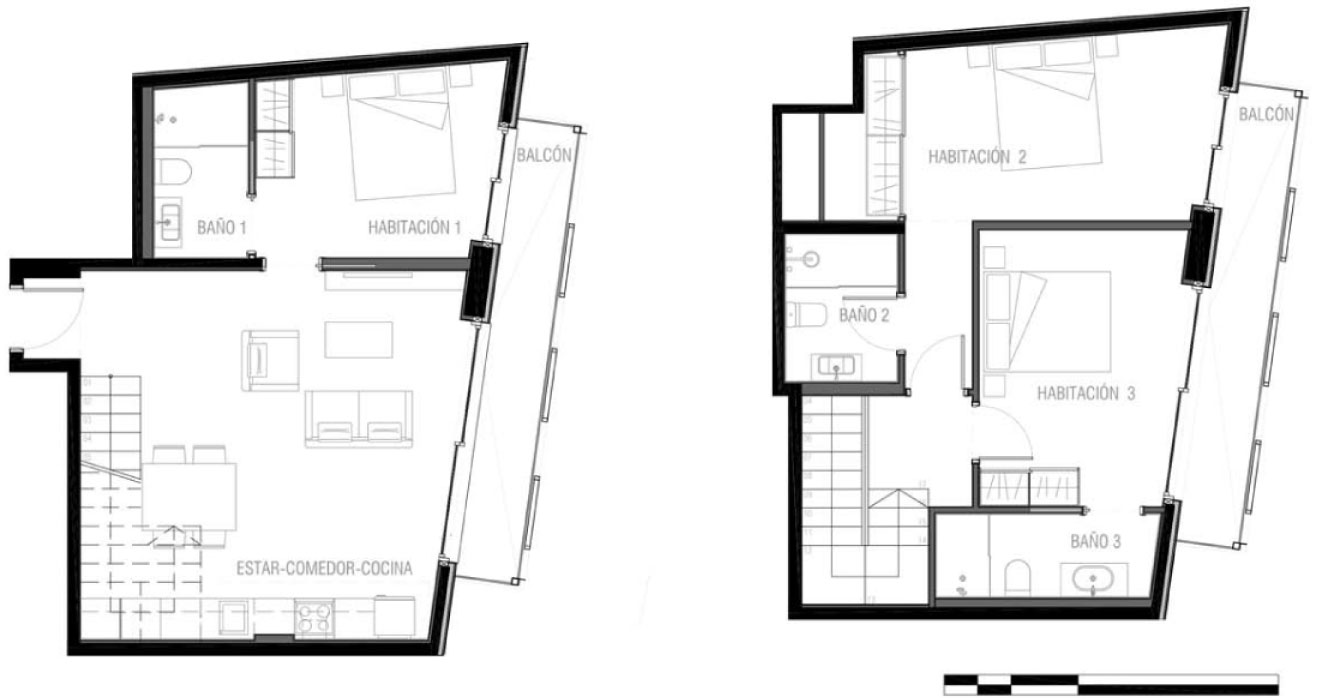
Este ático dúplex está distribuido en 2 plantas, en la primera planta encontramos un amplio espacio de salón comedor con la cocina abierta donde poder disfrutar de tu vida cotidiana, amigos y familia con el mar de fondo, también tenemos una habitación en suite con armarios empotrados y baño completo, todo con salida a un agradable balcón con unas vistas espectaculares al mar.

En la segunda planta tenemos 2 habitaciones en suite con sus respectivos baños y salida a un balcón desde que te puedes quedar contemplando la belleza del centro histórico de Sitges y el mar.

icono ambientes

3-4
habitaciones

icono cocheras

COCHERA

icono balcon

BALCÓN
TERRAZA

¡2 ULTIMAS UNIDADES! - entrega inmediata

PISO 8 FRENTE

Duplex - 4 amb. Planta baja

DEPARTAMENTO 1

departamento-1

DEPARTAMENTO 2

departamento-2

AVANCE DE OBRA

100

%

demolición

100

%

EXCAVACIÓN

100

%

ESTRUCTURAS

100

%

MAMPOSTERÍA

100

%

INSTALACIONES

100

%

TERMINACIONES

Conocé al detalle las propiedades en este video

UBICACIÓN

Con el mar de fondo, sentir sus rugidos, ver los amaneceres y atardeceres, oler la sal desde casa...mediterráneo en estado puro.

Está a 25 minutos del aeropuerto de Barcelona al que se puede llegar en tren, bus o coche muy fácilmente, además está a 35 minutos en tren del centro de Barcelona que le da una movilidad excepcional para poder trabajar en la ciudad y vivir en un pueblo idílico.

icono subte

Subte:

Líneas
-

icono tren

Tren:

Línea
R

icono colectivo

Buses:

Líneas
SL3-R2-R2S

ESTAMOS
EN CONTACTO

Nombre *
Ingresá tu nombre
Email *
Ingresá tu email
Teléfono *
Ingresá tu teléfono
Comentarios *
Ingresá tu consulta